Hai cercato:  
					
					
					
					
                    	
							 > Annuncio IT-IT-84486-1-2154286
					
			
				 
			 
		 
	 
	  
  
	
	        
		        
			        
			        
                    	
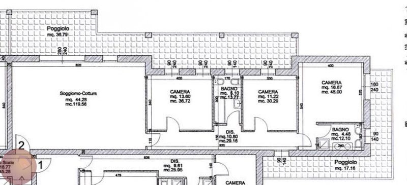
							Appartamento in VENDITA
                        
                    	
                        	PADOVA (PD)  SAN GIUSEPPE 
                        
                    	
                        	Mq: 140 Prezzo: 350,000 
                        
                        
                    	
                        	Codice Agenzia: 00260
                        
                        
                    	
                        	Codice Web: IT-IT-84486-1-2154286 
                        
                    	
                            
                            
                               
                            
                            
                            
                            	
                            
                        
		             
			        
        	     
             
					
	        			
            
            
            
                    
                    
                        
                            | Ubicazione | 
						
                        
                            | Posizione Immobile | - | Posizione Immobile | - | Nome Parco | *** | Palazzo Unico | - | 
                          
                            | Piano | SECONDO | Scale | - | Ascensori Nr. | 1 | Totale Piani Palazzo | - | 
                          
                            | Vicino Scuole / Universita' | - | Vicino Stazione Metro/Funicolare | - | Vicino Area Commerciale | - | Vicino Tribunale | - | 
                          
                            | Vicino strutture sportive | - | Vicino Stazione ferroviaria | - | Vicino Aeroporto | - | Vicino Parcheggi | - | 
                          
                            | Vicino Porto | - |  |  |  |  |  |  | 
                    
                     
              		
                    	
                            | Caratteristiche | 
                        
                            | Mq Tot. | 140 | Mq Coperti | 140 | Mq Scoperti | - | Vani Totali | 3 | 
                        
                            | Ingressi | - | Saloni | - | Soggiorni | - | Camere | - | 
                        
                            | Cucine | 1 | Cucine Abitabili | - | WC | 2 | WC con Doccia | - | 
                        
                            | WC con Vasca | - | Finestre | - | Balconi Nr/MQ | - | Giardino MQ | 1 | 
                        
                            | Luminoso | - | Panorama | - | Orientamento Geografico | - | Semi Arredato | - | 
                        
                         | Arredato | NO | Altezza Soffitto (Mt) | - | Rendita | - |  | 
                    
                    
                  		
                            | Accessori | 
                         
                            | Impianti a Norma | - | Impianti Luce | - | Impianti Acqua | - | Impianti Tel. | - | 
                        
                            | Certificazione Energetica | A+ | IPE | N.D. | 
                    
                    
             		
                        
                            | Complementi | 
                        
                      | Soppalchi Nr/MQ | - | Verande | - | Terrazzo a Liv. Mq | 1 | Terrazzo Lastrico Mq | - | 
                        
                            | Cantina Mq | - | Verde Attrezzato | - | Camini | - | Riscald. | AUTONOMO | 
                        
                            | Condizion. Cald./Fred. | AUTONOMO | Piscina | - | Posto Auto Nr/MQ | - | Box Auto Nr/MQ | - | 
                        
                            | Montacarichi | - |  |  |  |  |  |  | 
        
                    
                    
			  		
                        
                            | Stato d'uso | 
                        
                        	| Stabile | - | Anno Costruzione | - | Tipo Costruzione | - | Immobile | - | 
				
                        
                            | Zona censuaria | - | Classe | - |  |  |  |  | 
                    
                    
                  	
                        
                            | Disponibilita' / Stato Giuridico | 
                        
                           	| Stato | LIBERO | Scadenza | - | Servitu' a Favore | - | Servitu' Contro |  | 
                        
                            | Pregiudizievoli | - | Mutuo In Corso | - | Note Condoni | - | In Comunione | - | 
                        
                           	
                            | Quota Proprieta' | - |  |  |  |  |  |  |