La Ricerca per indirizzo OPZIONALE è limitata solo agli immobili con indicazione dell'indirizzo.

Appartamento FELTRE (BL)

:

Appartamento in VENDITA

FELTRE (BL) Località Anzù,

Mq: 120 Prezzo: 19,000

Codice Agenzia: q 60

Codice Web: IT-IT-33786-1-2034004

Appartamento FELTRE vendita   Località Anzù, Mondo Immobiliare di Rita di SummaAppartamento FELTRE vendita   Località Anzù, Mondo Immobiliare di Rita di SummaAppartamento FELTRE vendita   Località Anzù, Mondo Immobiliare di Rita di SummaAppartamento FELTRE vendita   Località Anzù, Mondo Immobiliare di Rita di Summa
Ubicazione
Posizione Immobile - Posizione Immobile - Nome Parco *** Palazzo Unico -
Piano Scale - Ascensori Nr. - Totale Piani Palazzo 2
Vicino Scuole / Universita' - Vicino Stazione Metro/Funicolare - Vicino Area Commerciale - Vicino Tribunale -
Vicino strutture sportive - Vicino Stazione ferroviaria - Vicino Aeroporto - Vicino Parcheggi -
Vicino Porto -            
Caratteristiche
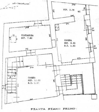
Mq Tot. 120 Mq Coperti 120 Mq Scoperti - Vani Totali 3
Ingressi - Saloni - Soggiorni - Camere -
Cucine 1 Cucine Abitabili - WC 1 WC con Doccia -
WC con Vasca - Finestre - Balconi Nr/MQ - Giardino MQ 1
Luminoso - Panorama - Orientamento Geografico - Semi Arredato -
Arredato NO Altezza Soffitto (Mt) - Rendita -  
Accessori
Impianti a Norma - Impianti Luce - Impianti Acqua - Impianti Tel. -
Certificazione Energetica G IPE N.D.
Complementi
Soppalchi Nr/MQ - Verande - Terrazzo a Liv. Mq - Terrazzo Lastrico Mq -
Cantina Mq - Verde Attrezzato - Camini - Riscald. -
Condizion. Cald./Fred. - Piscina - Posto Auto Nr/MQ - Box Auto Nr/MQ -
Montacarichi -            
Stato d'uso
Stabile - Anno Costruzione 1900 Tipo Costruzione - Immobile -
Zona censuaria - Classe -        
Disponibilita' / Stato Giuridico
Stato LIBERO Scadenza - Servitu' a Favore - Servitu' Contro
Pregiudizievoli - Mutuo In Corso - Note Condoni - In Comunione -
Quota Proprieta' -